با ما تماس بگیرید
AOYAMA آسانسور جهانی محدود
اضافه کنید: شماره 17، اوسوکانون، ناحیه جنوب غربی ناگویا، استان آیچی، ژاپن
تلفن: به علاوه 81-50-58386618
پست الکترونیک:info@aoyama-elevator.jp

تعویض فرکانس ویژه آسانسور مسافرتی AOYAMA نظریه کنترل از فن آوری پیشرفته را به عنوان پایه می گیرد. شروع، شتاب، منحنی های ترمز با توجه به نظریه ergonomics طراحی شده اند تا بهترین صحنه را بدست آورند. این یک درایو فرکانس متغیر فرکانس متغیر در حال حاضر واقعی سیستم درایو است.
EN81 ELEVATOR، گواهی TUV آلمان، گواهینامه CE، گواهینامه EAC
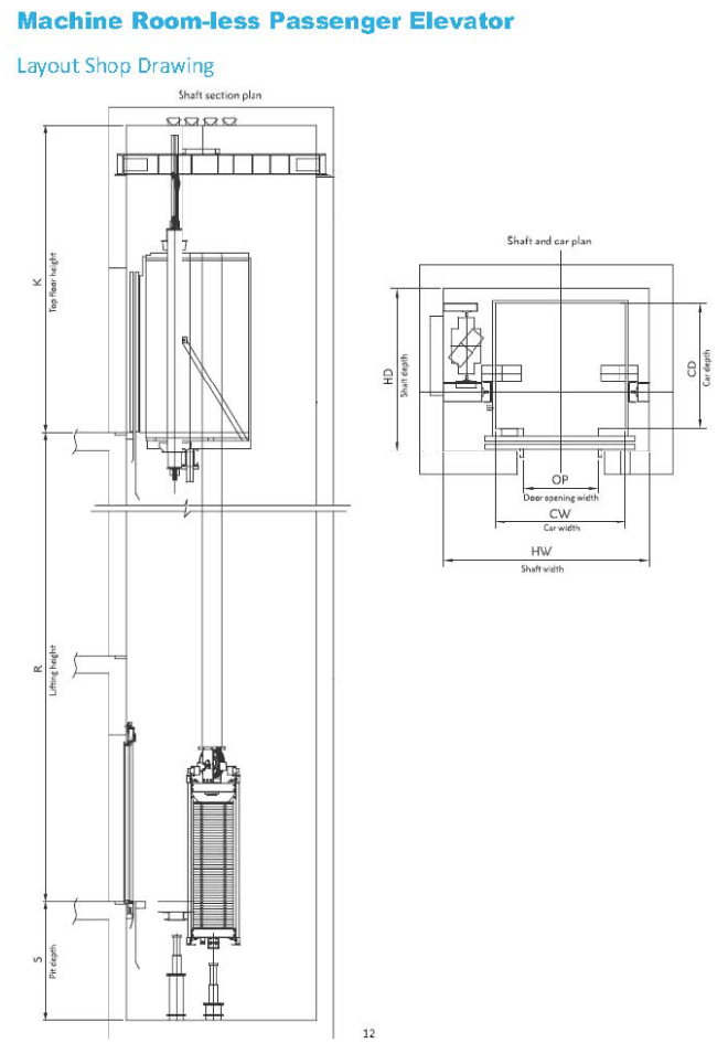
ظرفیت: 450kg ~ 2500kg، سرعت: 1.0m / s ~ 2.5m / s
سیستم کنترل AOYAMA، شروع صاف، حرکت آرام
تعویض فرکانس ویژه آسانسور مسافرتی AOYAMA نظریه کنترل از فن آوری پیشرفته را به عنوان پایه می گیرد. شروع، شتاب، منحنی های ترمز با توجه به نظریه ergonomics طراحی شده اند تا بهترین صحنه را بدست آورند. این یک درایو فرکانس متغیر فرکانس متغیر در حال حاضر واقعی سیستم درایو است.
سیستم درجه بندی درب بالا
این مجهز به تابع خودآموزی است. این درون منحنی جریان بهینه را با تنظیم مناسب تنظیم می کند. درایو کمربند همگام از قطعات کوچک ماشین، وزن سبک، ایمنی خوب، تعمیر و نگهداری راحت است.
راحت و بی صدا
درایو VVVF تضمین می کند که فوجی هموارتر عمل می کند. کنترل نویز خوب، تجربه سواری صلح آمیز مسافر را به ارمغان می آورد.
ایمن و قابل اطمینان
آرایش اتاق منطقی اتاق فضای نگهداری کافی را نگه می دارد. قطعات بعد از آزمایش قابلیت اطمینان، آسانسور به طور مداوم پایدار می شود.
طراحی ماشین های متنوع و انعطاف پذیر AOYAMA آسانسور مسافر سریال می تواند با سازه های متعدد به یک ترکیب. این بهترین انتخاب شما برای هتل ها، رستوران ها، ساختمان های اداری، ساختمان های تجاری و مسکونی، مراکز تفریحی، مراکز خرید و غیره است.
آسانسورهای ماشین کمتر دستگاه آسانسور ماشین AOYAMA ELEVATOR کمتر (MRL) نیازی به یک اتاق ماشین در بالای ساختمان نیست که امکانات بیشتری برای طراحی ساختمان های مدرن فراهم می کند. با پیشرفتهای مفاهیم هنری، دستاوردهای تحقیق و توسعه و سیستم های کنترل بالغ، AOYAMA ELEVATOR تکنولوژی پیشرفته در صنعت را ارائه می دهد و ارائه دهنده های بهینه برای ساختمان های مدرن می باشد.





تگ های محبوب: فضای صرفه جویی در تجاری قابل اعتماد آپارتمان mrl آسانسور مسافر، چین، کارخانه، تامین کنندگان، تولید کنندگان

